
Lunedì-Venerdì
9.00-13.00 e 15.00-19.00
Sabato su appuntamento
C.F. e P. IVA 00971900329
R.I. 009719003329
REA 114765
CCIAA Trieste
sangiovanni@arubapec.it
pubblicato il 09 Ottobre 2025
Zona Periferia est
| Prezzo | 680.000 € |
|---|
| Metratura | 230 m² |
|---|---|
| Giardino | 500 m² |
| Stanze | 2 |
| Soggiorno | 1 |
| Bagni | 3 |
| Ascensore | assente |
| Riscaldamento | autonomo con caldaia a metano |
| Acqua calda | autonoma con caldaia a metano |
| Stato dell'immobile | ristrutturato |
VIA RISANO - RAUTE In panoramica e soleggiata posizione collinare, proponiamo in vendita porzione di villa bifamiliare di ampia metratura con giardino, due posti auto, piscina e vista mare.
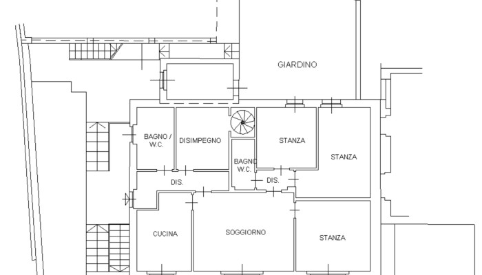
La proprietà si sviluppa su due piani abitativi di 230 mq, cortile e giardino (250+250 mq) di pertinenza del piano terra, un'area esterna coperta di 56 mq ad uso laboratorio e due posti macchina.
L'appartamento è un trilocale che potrebbe diventare quadrilocale, composto da salone con sala da pranzo, cucina abitabile, due bagni completi, due camere da letto. Al piano seminterrato, troviamo una grande taverna con cucina, tre stanze e un ulteriore bagno.
L'abitazione si presenta in ottime condizioni, risultato di un'ottima ristrutturazione realizzata negli ultimi anni. Infissi in rovere con doppio vetro termopan e tapparelle motorizzate.
Questo appartamento ha di pertinenza il cortile completamente lastricato in pietra repen, qui si trova la piscina, e il giardino a pastini.
Impianti autonomi per quanto riguarda luce, gas e riscaldamento. L'acqua fredda è in comune. Presenti le certificazioni inerenti gli impianti.
L'appartamento viene venduto parzialmente arredato con armadiature e mobili su misura.
L'edificio è stato oggetto di riqualificazione energetica. Nel 2023 sono state rifatte le facciate con la posa di cappotto termoventilato da 12 cm. Sul tetto sono presenti pannelli solari per la produzione di acqua calda a servizio del piano terra.
APE Classe A1 - EP gl,nren 49.19 kWh/mq anno.
Per info: Imobilia - tel 040.81.02.77 - cell 348.740.6896 - email info@imobilia.re
Vuoi fare una visita virtuale? Chiamaci per fare una dettagliata visita tramite il tuo computer o il tuo smartphone, restando comodamente a casa tua.
Sei interessato a vendere o affittare il tuo immobile? Ti offriamo una VALUTAZIONE GRATUITA e senza impegno.

Lunedì-Venerdì
9.00-13.00 e 15.00-19.00
Sabato su appuntamento
C.F. e P. IVA 00971900329
R.I. 009719003329
REA 114765
CCIAA Trieste
sangiovanni@arubapec.it